Розничная цена:
288 000 руб.
Цена Топас-С 10:
238 860 руб.
Цена Топас 10:
259 200 руб.
Технические характеристики Топас 10
Цены на Монтаж
Модификации
Документация
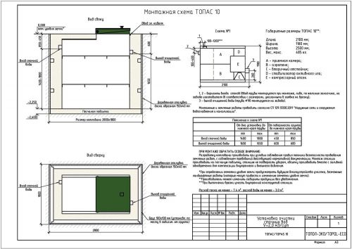
Монтажные схемы
Отвод сточных вод
Выполненные монтажи
Доставка и оплата
| Шеф-монтаж | Стандартный монтаж | Топас-С 10 “под ключ”* | Топас 10 “под ключ”* | |||
| в песок | в суглинок | в глину | в плывун | |||
| 11 800 руб. | 36 000 руб. | 36 000 руб. | 36 000 руб. | 36 000 руб. | Акция! | Акция! |
*Работы, включенные в монтаж «под ключ»:
Оплата за автономную канализацию и монтажные работы возможна несколькими способами.
Эксплуатационные характеристики канализации “Топас”
При выборе устройства для своего участка в первую очередь стоит учитывать, что «Топас 10» – это самотечная установка. Поэтому для эффективной работы септика на территории необходимо обустроить дренажный колодец. Кроме того, такая конструкция ограничивает эксплуатацию устройства при монтаже в глинистых почвах или при высоком прохождении грунтовых вод. В этих случаях более целесообразно выбрать другую модель септика – «Топас 10 Пр» с принудительным отводом. Других ограничений по использованию автономной канализации нет:
Ели стоимость септиков кажется вам слишком высокой, наша компания предлагает купить установку и поделить цену «Топас 10» на 2-3 хозяев, его производительности будет достаточно для эффективного обслуживания сразу нескольких домов. При этом мы рекомендуем вызвать нашего специалиста для точного определения объемов стоков со всех сантехнических приборов и верного выбора канализации. Услуга предоставляется совершенно бесплатно.
Остались вопросы? Свяжитесь с нами!
Мы всегда готовы бесплатно проконсультировать по вопросам, связанным с продукцией Топас, а также помочь с выбором оптимальной модели септика для решения ваших задач.
